Compact S
Compact S ist eine kompakte Einheit mit allen Funktionen der Haustechnik, ein hoch effizientes Multigerät mit den Funktionen Lüften, Heizen, Kühlen, Warmwasser.
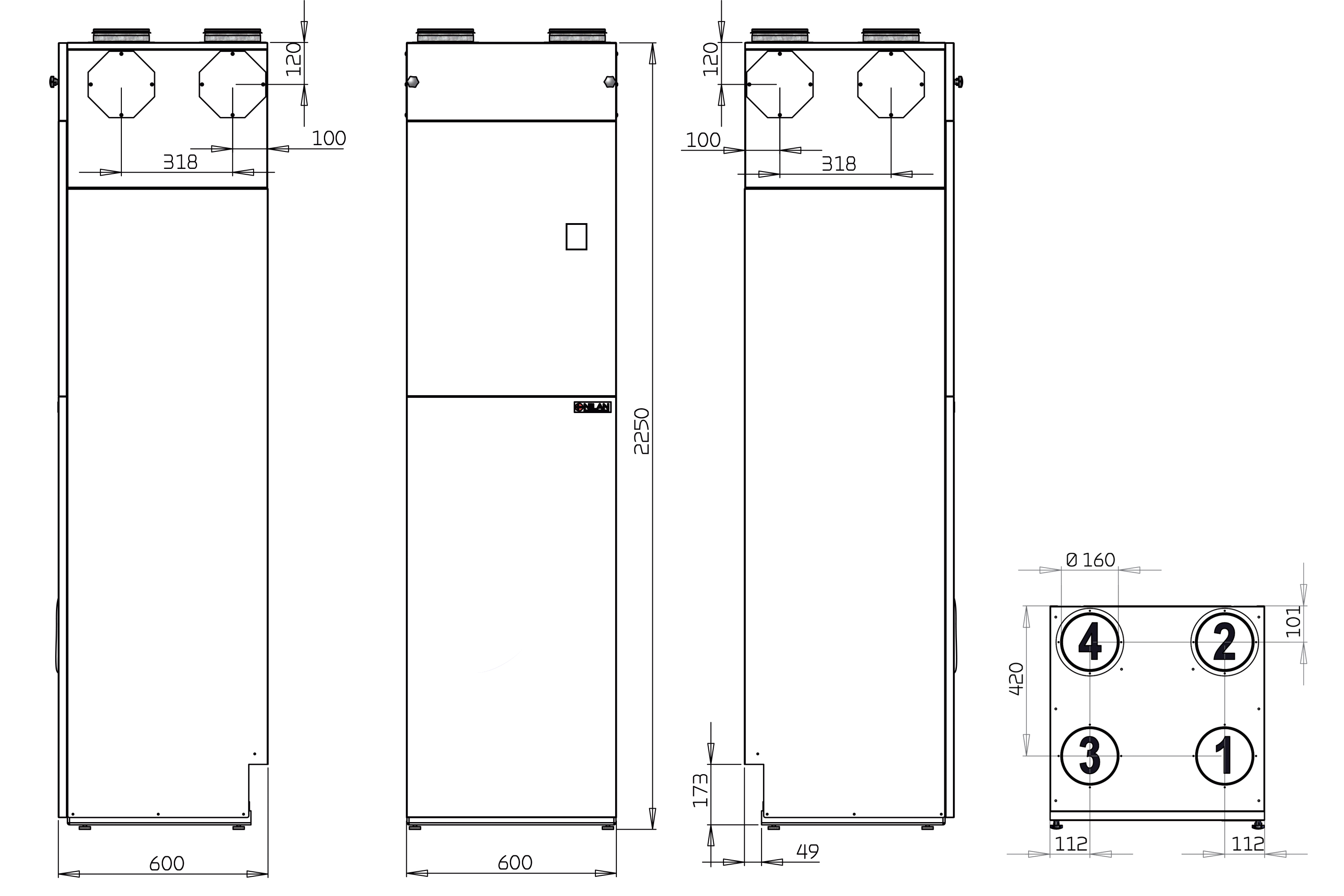
Die gesamte Anlage benötigt nur 0,36m² Platz und ist mit einem Lüftungsbedarf von bis zu 340 m³/h für Ein- und Mehrfamilienhäuser, Apartments, Reihenhäuser etc. geeignet.
Compact S ist leistungsstark und durch den hohen Wärmerückgewinnungsgrad aus der passiven Wärmerückgewinnung enorm sparsam.
Die steckerfertige Anlieferung, inkl. einer einfach zu bedienenden Steuerung sorgen für minimalen Montageaufwand.
Das Modul für die Nilan App zur Steuerung über das Smartphone sind im Lieferumfang enthalten.
Luftmenge (siehe Planungsdaten für SEL/SFP-Werte)
Min : 75 m3/hMax : 340 m3/h
„Herz und Lunge" des Hauses
Compact S ist ein unkonventionelles Lüftungsgerät, das im Gegensatz zu anderen Lüftungsgeräten 100% der Wärme in der Abluft wiedergewinnt. Durch den Gegenstromwärmetauscher wird bis zu 95% der Energie in der Abluft zur Erwärmung der Außenluft wiedergewonnen. Die verbleibende Energie wird von der integrierten Wärmepumpe zur Erzeugung des Warmwassers genutzt.
Compact S
|
LeistungLeistung eines Standardgeräts als Funktion von qv und Pt ext. SEL nach EN 13141-7 gilt für Standardgeräte mit ISO 16890 Coarse 75% (G4) Filtern und ohne Heizregister. SEL beinhaltet den Gesamtstromverbrauch des Gerätes, inkl. Steuerung Achtung! SEL-Werte werden gemessen und als Gesamtwert für beide Ventilatoren angegeben. |
![]() |
TemperaturwirkungsgradTemperaturwirkungsgrad für Geräte mit Gegenstromwärmetauscher nach EN308. Der Temperaturwirkungsgrad gilt nur für die Gegenstromtauscher (ohne Wärmepumpenbetrieb)
|
![]() |
COP (Luft-Luft)Leistungszahl COP [-] der Zuluft als Funktion der Außentemperatur t21 [°C] und dem Volumenstrom qv [m3/h], gemäß EN14511 bei einer Raumtemperatur t11 = 21°C COP gemäß EN14511 ist für Wärmepumpe und Gegenstrom zusammen berechnet.
|
![]() |
WarmwasserWarmwassermenge in Liter Vmax [L] vom Compact S-Behälter als Funktion der Warmwassertemperatur t [C°] und Behältertemperatur bei 40°, 50° und 60° C. |
![]() |
SchalldatenSchallwerte gelten für qv = 210 m3/h und Pt, ext = 100 Pa, gemäß EN 9614-2 für Oberflächen und EN 5136 für Kanäle. Der Schallleistungspegel LWA sinkt bei abnehmender Luftmenge, bzw. abnehmendem Gegendruck. Der Schalldruckpegel LpA, bei einem gegebenen Abstand von den akustischen Verhältnissen am Installationsort abhängig. |
![]() |
|
|
1: Außenluft |
Die CTS602-Steuerung ist eine umfassende und einfach zu bedienende Steuerung mit vielen Optionen. Die Steuerung wird ab Werk mit einer Grundeinstellung geliefert, die den individuellen Wünschen und Anforderungen angepasst werden kann, um ein optimales Raumklima und höchste Energieeffizienz zu erreichen. Das HMI Touch Panel bietet einen guten Überblick über den aktuellen Betrieb des Gerätes und verfügt über eine Menüstruktur, in der sowohl Benutzer als auch Installateur einfach navigieren können. Externe Kommunikation
Weitere Informationen über alle Funktionen finden Sie in der Software- und Montageanleitung des Gerätes.
|
ACHTUNG! Bei der Aufstellung des Geräts ist ausreichend Platz für spätere Wartungs- und Reparaturarbeiten vorzusehen. Wir empfehlen ein Abstand von ca. 60 cm vor dem Gerät. Der Filterwechsel muss einfach sein und der Austausch von Ventilatoren oder anderen Bauteilen müssen möglich sein. Es muss Platz für eine einfache Reinigung des Geräts vorhanden sein. ACHTUNG! Es ist wichtig, dass das Gerät waagerecht steht, damit das Wasser aus der Kondenswasserschale ablaufen kann.
|













