VPR 240
VPR 240 ist ein Lüftungsgerät mit Wärmerückgewinnung über einen rotierenden Wärmetauscher in Kombination mit einer Wärmepumpe. Die reversible Wärmepumpe kann die Zuluft je nach Bedarf kühlen oder erwärmen.
Mit dem rotierenden Wärmetauscher in Kombination mit einer optimalen Platzierung der Kondensator- und Verdampfer Oberfläche erzielt das Gerät einen sehr hohen Kühl- und Heizeffekt und somit auch einen sehr guten COP. Der variable Kompressor des Gerätes ermöglicht eine sehr präzise Regelung der Zulufttemperatur.
Serienmäßig wird die VPR mit einem Kondensationswärmetauscher produziert. Für noch mehr Kühlleistung kann ein Sorptionswärmetauscher gewählt werden.
VPR 240 wird häufig in Gebäuden mit Kühlbedarf eingesetzt, z. B. in Büros, Geschäftsräume, Konzertsäle, Fitnesscenter usw.
Luftmenge (siehe Planungsdaten für SEL/SFP-Werte)
Min : 800 m3/hMax : 2650 m3/h
Motor und Motorsteuerung
|
Leistung (Kondensationstauscher)Die folgenden Daten werden auf Basis eines Kondensationstauschers berechnet. Leistung eines Standardgerätes als Funktion von qv og Pt, ext. Elektroeffizienz nach EN 13053 gilt für Standardgeräte mit ISO ePM10 >60% (M5) und ISO ePM1 50% (F7) Filtern und ohne Heizregister. * Die Luftgeschwindigkeit über der Verdampferoberfläche wird bei Meter pro Sekunde gemessen. Achtung! SFP-Werte werden gemessen und als Gesamtwert für beide Ventilatoren angegeben. |
![]() |
Heizungdaten (Kondensationstauscher)Die folgenden Daten werden auf Basis eines Kondensationstauschers berechnet.
|
![]() |
Leistung (Sorptionstauscher)Die folgenden Daten werden auf Basis eines Sorptionstauschers berechnet. Leistung eines Standardgerätes als Funktion von qv og Pt, ext. Elektroeffizienz nach EN 13141-7 gilt für Standardgeräte mit ISO ePM10 >60% (M5) und ISO ePM1 50% (F7) Filtern und ohne Heizregister. * Die Luftgeschwindigkeit über der Verdampferoberfläche wird bei Meter pro Sekunde gemessen. Achtung! SFP-Werte werden gemessen und als Gesamtwert für beide Ventilatoren angegeben. |
![]() |
Kühlungdaten (Sorptionstauscher)Die folgenden Daten werden auf Basis eines Sorptionstauschers berechnet.
|
![]() |
TemperaturwirkungsgradTemperturwirkungsgrad für Rotierende Wärmetauscher gemäß EN308 (Trocken). |
![]() |
SchalldatenSchalldaten gelten für qV = 2400 m3/h und Pt, ext = 250 Pa nach EN 9614-2 für Oberflächen und EN 5136 für Kanäle. Der Schallleistungspegel LWA sinkt bei abnehmender Luftmenge, bzw. abnehmendem Gegendruck. Der Schalldruckpegel LpA in einem gegebenen Abstand hängt von den akustischen Bedingungen am Installationsort ab. |
![]() |
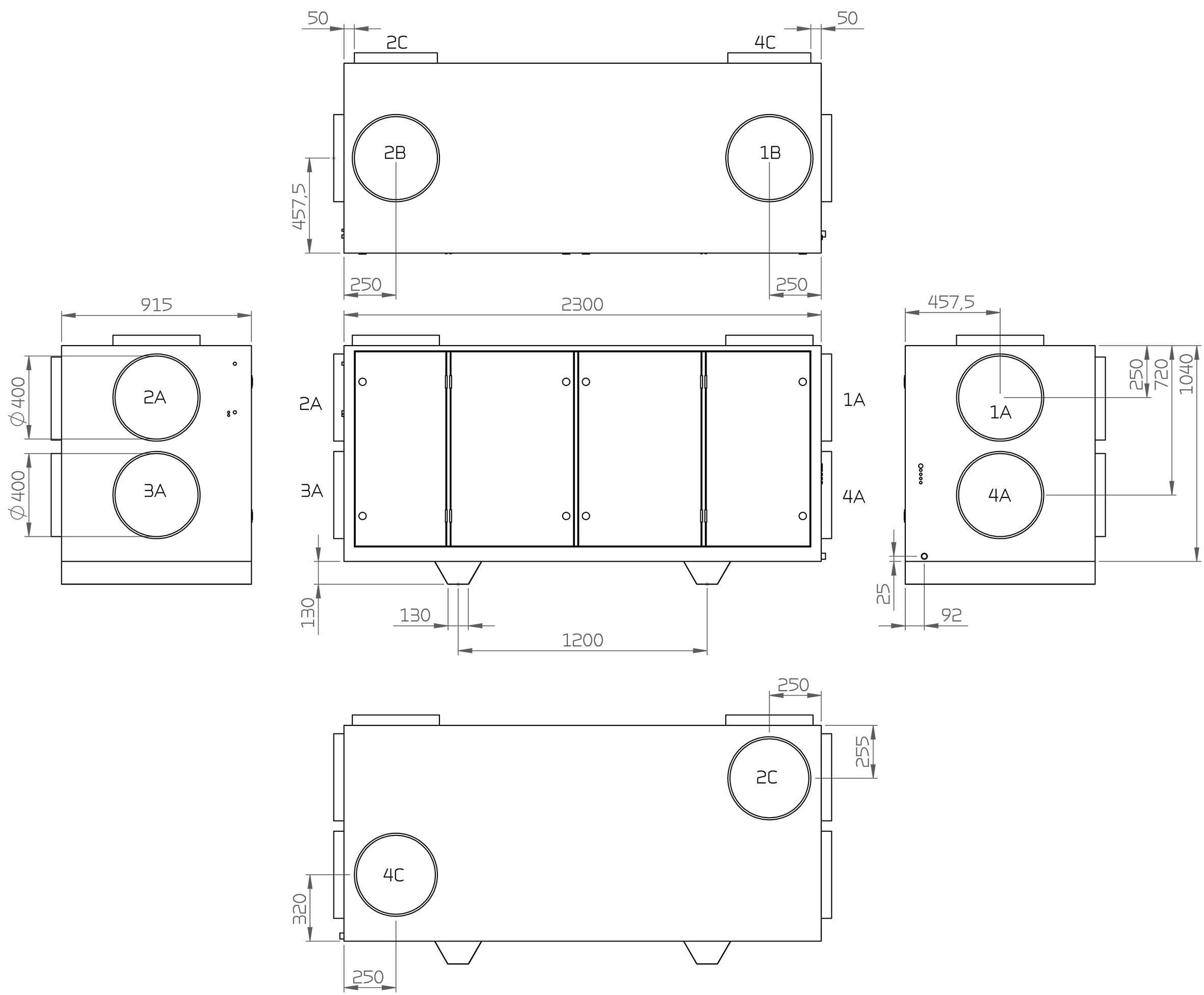
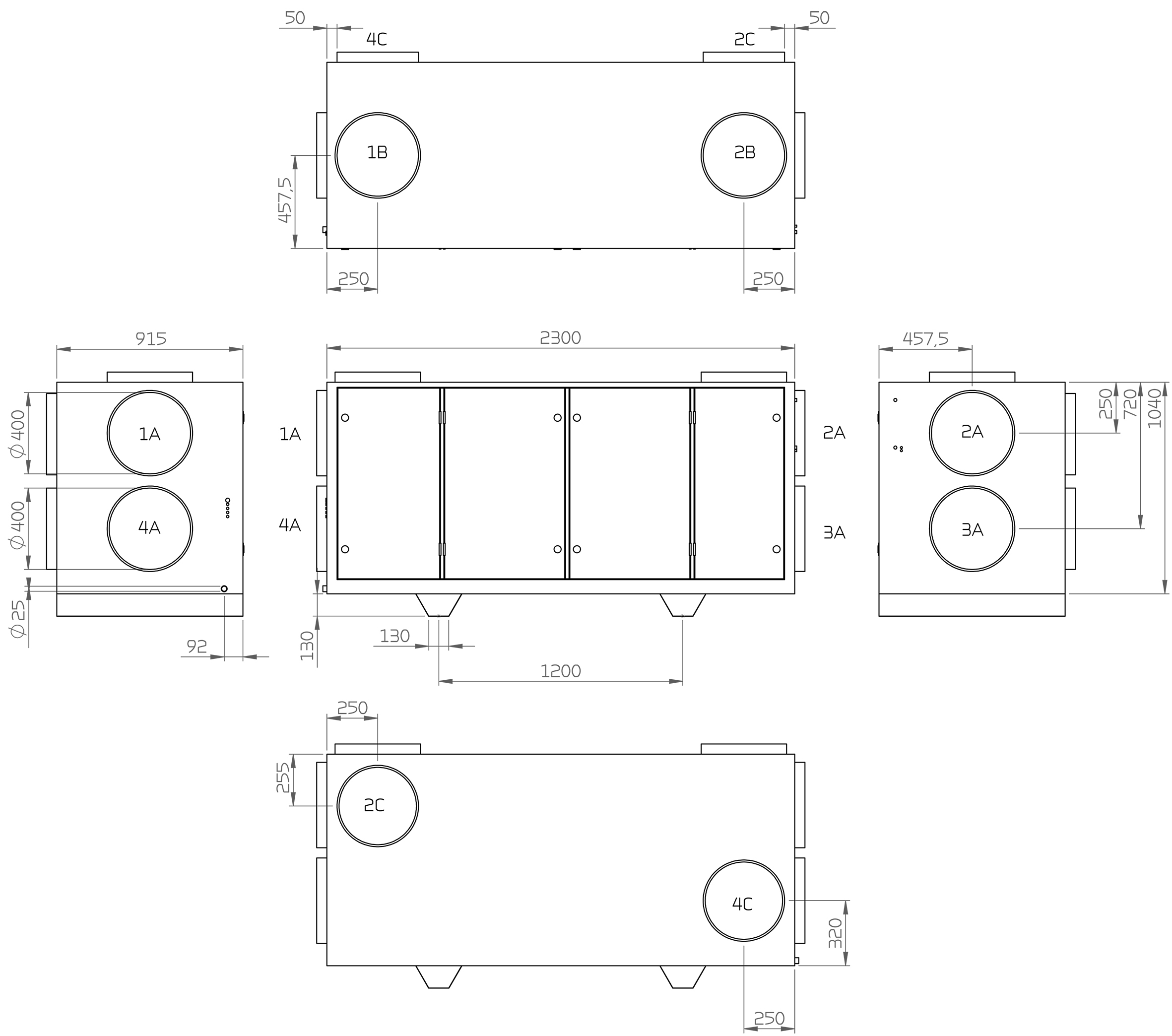
Maßskizze VPR 240 (zuluft links):
Alle Angaben verstehen sich in mm. 1. Außenluft A. Giebelplatzierung
Alle Angaben verstehen sich in mm. 1. Außenluft A. Giebelplatzierung |
Die CTS602i-Steuerung ist eine umfassende und einfach zu bedienende Steuerung mit vielen Optionen. Die Steuerung wird ab Werk mit einer Grundeinstellung geliefert, die den individuellen Wünschen und Anforderungen angepasst werden kann, um ein optimales Raumklima und höchste Energieeffizienz zu erreichen. Das HMI Touch Panel bietet einen guten Überblick über den aktuellen Betrieb des Gerätes und verfügt über eine Menüstruktur, in der sowohl Benutzer als auch Installateur einfach navigieren können. Externe Kommunikation
Weitere Informationen über alle Funktionen finden Sie in der Software- und Montageanleitung des Gerätes.
|








